【現場風景】S様邸 まもなく完成予定!
ブログ
2024/03/28
【ものづくりの舞台裏】耐震リノベーション

皆さんこんにちは!
新築一戸建て・リフォーム・リノベーションもお任せ!純工房 広報部の牟田です!
3月も終わりに近づき、新生活の準備で大忙しの方もいらっしゃるのではないでしょうか?
まだまだ肌寒い日が続きますが、皆さん体調はどうですか?
現場の工事風景や様子を見聞きするたび、職人さん達は寒さに負けじと日々作業されているのだと感じます。
今回は1月からスタートし、もうまもなく完成予定の耐震改修リノベーション物件のご紹介をいたします!
物件情報
- 築年数:51年(1973年 新築)
- リフォーム面積:61.56㎡(18.62坪)
- リフォーム予算:約1千万円
- 構造:木造軸組み
耐震改修・断熱・防火工事では耐震等級3相当まで引き上げ、大地震でも倒壊・崩壊しない住宅かつ、
暑さや寒さに負けず、万が一のときでも命と財産を守る住まいに生まれ変わります!
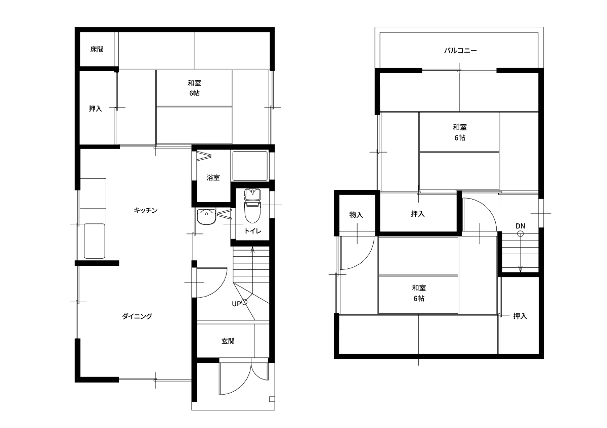
3DKの間取りを変更し、1LDK+駐車場付きへ大変身!
▼Before

▼After

一つ目のポイントは大胆な間取り変更!
1階にあったキッチン・ダイニングをより日当たりの良い2階へ変更し、さらに間仕切を無くして一つにすることで、開放感のある明るい空間へ生まれ変わらせます!
壁側に設置され仕切りのあったキッチンはオープンキッチンへ。
カウンターが新たに設置され、友人や家族との会話を楽しみながら調理ができ、出来立てのお料理がすぐに並べられます。
さらにインナーガレージが設置されたことで、より生活に根付いた間取りへ。
雨や雪の日でも濡れずに車に乗り降りができ、お買い物などの外出がしやすくなります。
▼こちらの間取りは以下のリノベーションでも取り入れられています。
・築40年の中古物件をフルリノベーションで男前インダストリアルハウスに大変身!
・上質な遊び空間に仕上げたヴィンテージブルックリンハウス
住まいと人のマッチング
二つ目のポイントは、「住まいと人のマッチング」です。
結婚や出産、お子さんの独立、外勤から在宅ワークへ…。コロナ禍以外でも、ライフステージやスタイルの変化は付きまとうもの。
今回のフルリノベーションでは、そういった変化に目を向け、どんなお客様に住んでいただくのかターゲットを絞り、
そして今後住んでいただくか想像・企画することで、ムダのない家づくりを目指しました。
元々3つあった居室を一つにまとめることは、デメリットのように感じるかもしれません。
しかし約18坪の物件に1~2人の家族構成で住むと仮定した場合、3DKだと使わないお部屋が出てくる可能性も…。
限られたスペースだからこそ、空間を最大限に活用してゆったりと過ごせる住まいを作ります。
工事風景はこちら!
▼解体前




▼工事
間仕切などはすべて取り払いました。


基礎や柱など、骨組みの補強もしっかり行います!



インナーガレージの基礎部分です。

新たな断熱材もみっちりと敷き詰めていきます!
ロックウールは火に強く、基材自体の持つ防火性(耐熱性)により、万一の火災時の延焼や類焼から住まいを守るのに大きく役立ちます。



どんな内装になるか楽しみですね!


補助金について
堺市では、主に「昭和56年5月31日以前に着工した」物件を対象に、耐震改修工事の補助金制度を実施しています。
家づくりには多くの知識や情報が必要で、「やっぱりリフォーム・リノベーションは無理かも…」と思う方も少なくありません。
純工房は家づくりの専門家として、補助金申請などしっかりサポートいたします。
堺市にお住まいで【耐震・断熱・防火工事を検討されている方】は、ぜひお早めにご相談ください。
まとめ
建物全体の老朽化や、設備の劣化、ライフステージや家族構成の変化により、既存の間取りでは住みづらくなってきた…という工夫だけでは解消出来ない不便を感じることもあるでしょう。
大切な住まいに長く住み続けたいからこそ、より快適に過ごしたい! とお考えの方は、ぜひリフォーム・リノベーションをご検討してみてはいかがでしょうか?
Calendar
カレンダー
CONTRIBUTOR
投稿者
ARCHIVE
アーカイブ


















